Eclairé par des esquisses et un préchiffrage, vous pouvez vous projeter et négocier son achat dans les meilleures conditions en maîtrisant votre budget global.
En me confiant la conception et la maîtrise d’œuvre de votre projet, vous êtes garanti d’un résultat qui correspond à votre objectif, tant dans son design et sa fonctionnalité que dans son coût et son délai.
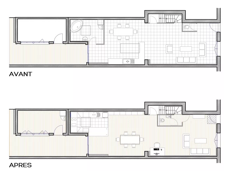
Cette habitation composée d’un bâtiment principal avec deux mitoyennetés et d’un appentis a été entièrement rénovée et transformée :
La salle de bain existante au RdC a été déplacée au premier étage permettant l’implantation d’une cuisine ouverte sur un spacieux séjour.
Dés l’entrée de l’habitation, un salon confortable vous accueil et se poursuit sur une salle à manger lumineuse avec sa cuisine à proximité immédiate.
L’accès aux étages, face à l’entrée, a été cloisonné en intégrant un WC et une penderie.
Côté jardin, l’appentis est accessible par une terrasse bois. Sa rénovation complète permet l’organisation d’une salle de sport avec un espace buanderie.