J’analyse le lieu et vos problématiques pour y répondre fonctionnellement et esthétiquement dans le budget et le délai défini.
Ce projet m’a permis de réaliser un accueil municipal d’information et de réunions avec des locaux modulaires pour des associations.
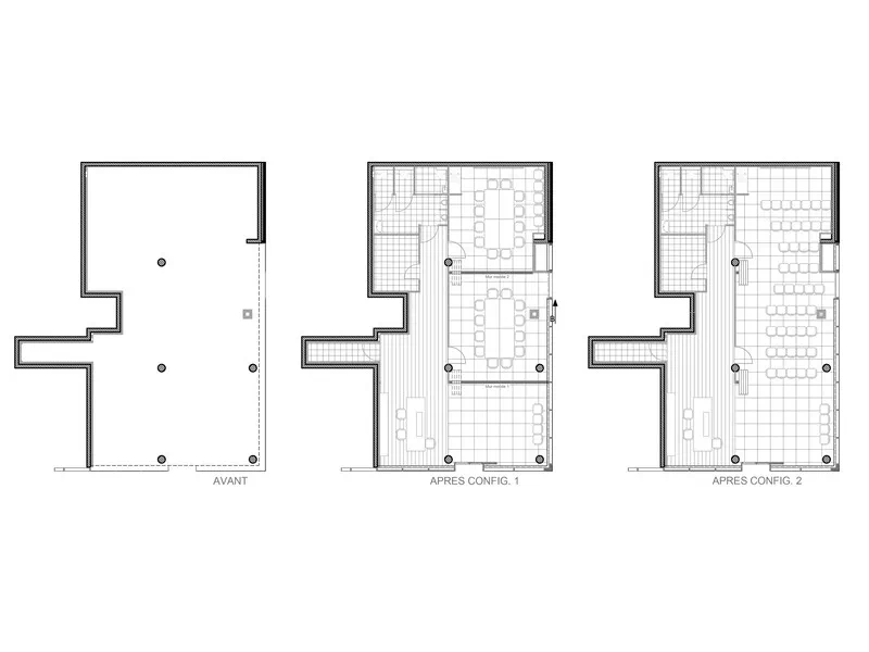
Coque livrée brute, l’aménagement de cette surface s’organise depuis le point d’accueil situé à l’entrée qui permet d’informer et d’orienter les usagers sur des espaces à géométrie variable grâce à des murs mobiles.
Salle de conférence de 50 personnes à 3 espaces indépendants, la volumétrie de l’établissement s’adapte aux besoins.